이전 까지는 치수 스타일과 치수 스타일 관리에 대해 알아봤는데요.
이번에는 직접 치수를 기입하는 방법에 대해 알아보겠습니다.
먼저 치수를 기입하기에 앞서 중심선의 중요성도 알려드리겠습니다.
만약 아래의 그림을 봐주시기 바랍니다.
1.

2.

위의 1번과 2번의 그림은 같은그림인데 차이점이 있습니다.
바로 전체를 놓고 봤을때 중심선이 표시되어 있다는 것입니다.
이 중심선이 있고 없고에 따라 도면 해석에 큰 도움이 될수도 있습니다.
이것이 무슨 말이냐 하면, 중심 표식이 있으므로, 유추할수 있는 몇가지가 있는데 그중하나가 바로, 대칭이라는 암묵적인
의미를 내포 합니다. 즉, 중심선 기준으로 어느한쪽의 치수만 표기되어도 반대쪽의 치수를 유추 할수 있다는 것입니다.
반대로, 좌우 대칭이 아닌데, 중심표식을 했다 라고 한다면, 해당 도면은 잘못 그려진 도면일 것 입니다.
그러면, 위 두 그림의 치수를 다시 표기해보겠습니다.
1번 치수 기입

위와 같이 좌우가 같다는 보장이 없기에, 육안상으로는 같은선상같아도 그것은 어디까지 추측일뿐, 모든 치수를 표현해 주어야합니다.
그러면 센터라인이 있을때의 치수는 어떻게 되는지 보겠습니다.
2번 치수 기입

1번 치수 기입에 비해서 없는 치수가 많은것 같습니다. 하지만, 이 치수 만으로도 1번과 같은 양품의 제품을 만들수가 있습니다.
아래그림을 보면,

그림에 표기된 치수를 유추해 볼수가 있습니다.
좌표(치수)A의 값은 얼마일까요. 168의 치수의 대칭(1/2값)의 중심이므로 그 값은 168/2 = 84
좌표 B의 값은 75/2 = 37.5
[ 그러면 좌표 C의 값은 (84 , 37.5)입니다. 좌표의 개념을 아시는 분도 있지만, 꼭 알아두어야 할 부분입니다. 추후에 기회되면 다루어 보겠습니다.]
치수 D의 값은 얼마일까요. 치수 D는 75의 반값에서 24를 뺀 값과 같습니다. 37.5-24 = 13.5
치수 E의 값 또한 마찬가지로 치수 A값인 84에서 13을 뺀수의 값을 갖습니다. 84-13 = 71
비록 더하기 빼기를 하는 번거로움이 있더라도, 도면자체는 심플해졌습니다.
물론, 현장에 가공하기위해 프린트된 도면으로 뿌려진다면, 작업자는 매번 계산을 해 주어야하기때문에 매우 불편할 것입니다.
여기서 좌표 C를 기준값인 "0"으로 잡는다면, 작업자의 불편함이 줄어 듭니다.

이그림은 치수 원점(0,0) 위치기준으로 상하대칭, 좌우대칭 이므로, 보시는 4사분면의 치수만으로도 그림 전체의 치수를 알수 있게 됩니다. 또한, 여기서알아야 할 개념은 기준점(0,0)을 기준으로 전개되는 치수의 부호입니다.
----- 물론 대부분의 사람들은 이미 알고 계시리라 보지만, 좌표의 개념을 잠시 알고 간다면,
흔히 2D 평면의 값을 표현하는 좌표 표시 방식은 X값과 Y값을 갖는 XY평면에 표현이 됩니다.
여기서 만약 평면에 입체를 표현해줄수있는 Z라는 값이 생기게 된다면, 이는 3D 도형이 되며, XYZ평면이라고 합니다.
여기서, 현재 그림은 xy평면의 좌표입니다.
그림에 표기된 A는 Y의 값을 갖습니다. 그림에 표기된 B는 X의 값을 갖습니다.
좌표값표기는 (X , Y)와 같은 형식으로 표현합니다.

위와 같이 화살표 방향으로 각각 좌표값의 변화가 생깁니다.
여기서 알수있는것은
1. 파란색 영역에 해당되는 모든 좌표는 (-X , +Y)의 값을 갖는다는것.
2. 노란색 영역에 해당되는 모든 좌표는 (+X , +Y)
3. 녹색 영역에 해당되는 모든 좌표는 (+X , -Y)
4. 분홍색 영역에 해당되는 모든 좌표는 (-X , -Y) 의 값을 갖는 다는 것 입니다.
여기 좌표를 보면 알듯이 좌표의 값은 반드시 " , " 를 기준으로 앞의 치수는 X좌표값
뒤의 치수는 Y좌표값으로 표현해 주어야 한다는 것 입니다.
이 좌표의 개념은 만약 가공쪽에서 일하신다면, 많이 중요할 수도 있는 부분입니다.
여기까지가 좌표의 대략적인 개념입니다. -----
그럼 다시 치수 기입으로 가서,

위와 같은 그림의 치수를 기입한다면,
먼저 봐주셔야할게 역시나 좌우 대칭인지를 봐 줍니다.
그후에, 전체적인 외형치수를 먼저 기입 할 것인지, 부분치수를 먼저 기입할 것인지를 택해야 합니다.
저와같은 경우는, 부분치수를 먼저 넣는 편 입니다. 그 이유는 치수와 외형선을 구분짓는 첫번째 치수가 부분치수가 되었으면 해서입니다.
이게 무슨 말이냐.

전체 치수인 214를 위와 같이 배치했습니다. 이때 녹색 영역에 몇개의 치수가 올지 모르기 때문입니다.
모든 치수를 동일선상에 둘수 없으므로, 치수를 기입해야할 대상이 많다면, 이후 조정이 필요하기 때문입니다.
일반적인 치수기입은 큰 치수(전체치수)는 작은 치수를 감싸는 형태가 가장 보기 좋습니다.
이말은 위와같이 전체 치수를 넣고, 작은 치수가 전체 치수보다 올려서 기입하는것은 보기 좋지 않다는 것입니다.
그럼 작은 치수부터 기입해 봅니다.

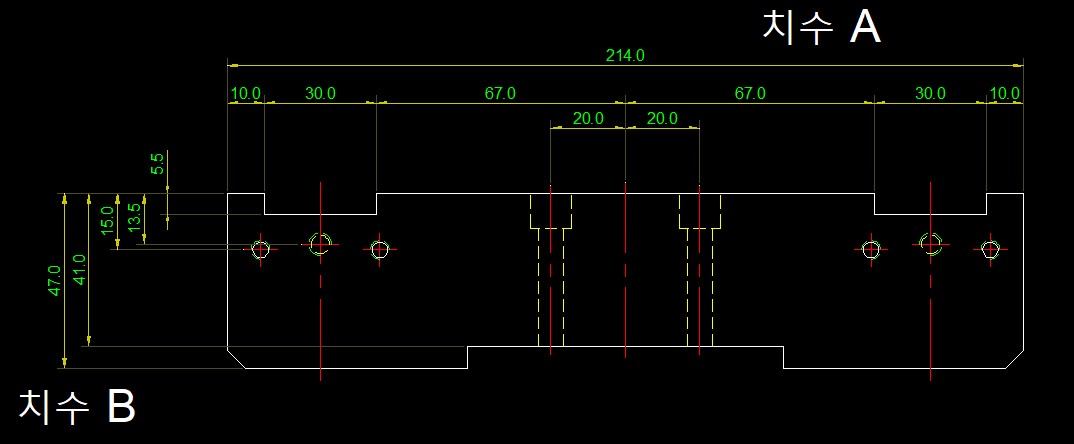
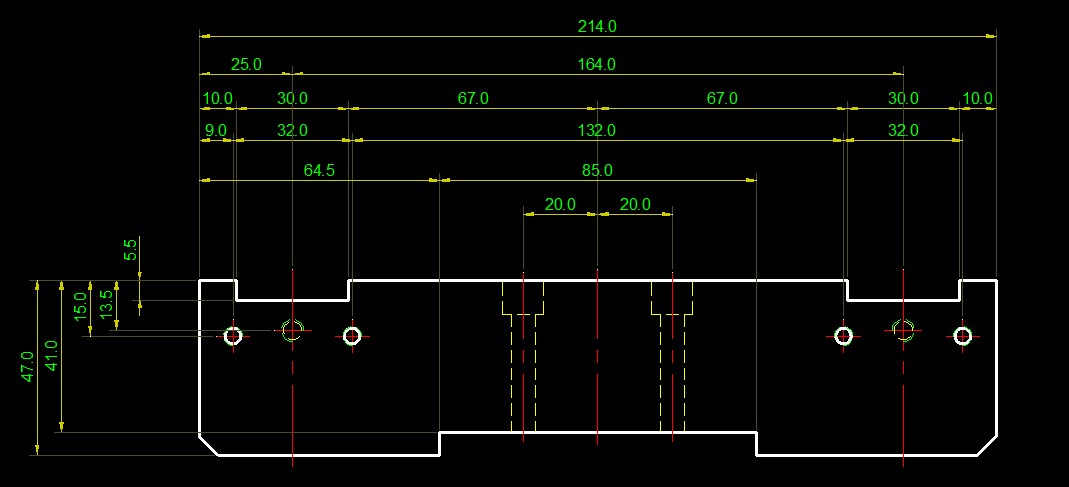
치수 B는 현재 모든 치수가 다 기입된 상태입니다.
하지만, 치수 A는 일부 치수가 빠져있습니다. 만약 한곳에 몰아서 치수를 기입할 경우. 아래와 같이 표현되는데요.
여기서 알아두셔야할 치수기입의 규칙중하나는 치수는 되도록 한곳에 집중하여 그린다.
아래의 치수는 비록 선이 끊기고, 문자를 가로지르는 치수 보조선이 있긴 하지만, 도형의 기준이 어딘지에 대해 쉽게 알수있고, 연관된 위치를 쉽게 비교도 가능합니다.

하지만, 치수가 근접된 곳에 있는 선들이 구분이 안가는 경우도 있습니다. 여기서, 치수를 분리해보겠습니다.

치수기입..
이게 아무것도 아닌거 같아보여도. 설계에선 상당한 비중을 차지합니다.
제가 표현력이 부족하여, 알려드리고자하는 내용을 잘 설명하지 못하여, 이번 글은 여기까지 보도록 하겠습니다.
원래 3개의 카테고리로 치수기입을 설명하고자 했으나, 다음 글에서 마무리 짓도록 하겠습니다.
'개인 학습장 > AUTOCAD(Gstarcad2021)' 카테고리의 다른 글
| AUTOCAD 클래식 화면 변환법. (0) | 2021.12.18 |
|---|---|
| 치수 기입 및 DIMENSION 도면층 관리 그리고 치수 스타일 관리. - 치수 기입의 여러가지 방법. (0) | 2021.06.03 |
| 치수 기입 및 DIMENSION 도면층 관리 그리고 치수 스타일 관리. - 치수 스타일 관리 (0) | 2021.05.21 |
| 치수 기입 및 DIMENSION 도면층 관리 그리고 치수 스타일 관리. - 공차와 끼워맞춤 (0) | 2021.05.21 |
| 도면층 Layer가 가진 편리한 기능. (0) | 2021.05.20 |